$1,650,000
1004 N Scenic Drive, Payson, AZ 85541
Description
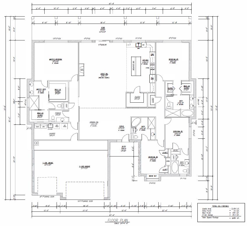
Introducing a stunning new construction opportunity in the prestigious Chaparral Pines Golf Community, perfectly positioned on a premium lot overlooking the picturesque par-3 4th hole with its shimmering lake and waterfall views. This proposed single-level residence offers timeless design, cutting-edge construction, and luxury finishes throughout and anticipated to be completed in late spring of 2026. Built with Fox Blocks Insulated Concrete Forms, the home will feature double-insulated, steel-reinforced concrete walls that deliver exceptional strength, efficiency, and peace of mind. This building system is engineered to exceed today's codes while providing superior durability, energy performance, and sound reduction, ensuring the home is as solid as it is beautiful. Finishes can be customized with an accepted offer. The thoughtfully designed floor plan offers over 3,279 square feet of livable space with four bedrooms, each with its own en-suite bath, including a luxurious primary suite with a spa-inspired bathroom and walk-in closet. Enter through a welcoming foyer and formal dining area that opens into a vaulted great room with a fireplace, seamlessly connecting to the expansive covered patio. The gourmet kitchen is the centerpiece of the home, boasting a custom hood, large island, undercounter wine refrigerator, upgraded flooring, and striking tile finishes, along with a generous pantry. Heated bathroom floors and smart-home technology, including a ''vacation mode,'' add comfort and convenience. Outside, a brick paver driveway leads to a three-car garage, while a stone-accented walkway guides you to the recessed entry porch. The home's rear elevation captures sweeping views of the golf course and pond, enhanced by cable railing on the covered deck to preserve the scenery. Combining elegance with practical design, the residence totals over 4,800 square feet under roof including porches and garage. Set within the guard-gated, master-planned Chaparral Pines community, residents enjoy access to the award-winning golf course, clubhouse dining, fitness facilities, pool, and a wide range of recreational amenities, all surrounded by the natural beauty of Arizona's Rim Country.
Contact Us
Contact Us
Ask a question or schedule a showing
Listing updated: November 30, 2025
MLS#: 92816
Source: WMAOR MLS
The data relating to real estate for sale on this website comes in part from the Internet Data Exchange program of the White Mountain Association of REALTORS®. Real estate listings held by any other brokerage firm include the name of that firm.
IDX information is provided exclusively for consumers' personal, non-commercial use and may not be used for any purpose other than to identify prospective properties consumers may be interested in purchasing. Data is deemed reliable but not guaranteed accurate.
All information is deemed reliable but not guaranteed accurate by the White Mountain Association of REALTORS®.
Copyright 2026 White Mountain Association of REALTORS®. All rights reserved.
Similar homes in Payson
6,550 sqft | 0.89 acres | Commercial Sale for sale
1022 S Hunter Creek Drive, Payson, AZ 85541
Mountain Retreat Realty Experts, LLC - Lakeside
1 acres | Land for sale
804 S Monument Valley Drive, Payson, AZ 85541
Delex Realty, LLC
4 bds | 3 ba | 2,701 sqft | 3.42 acres | Residential for sale
415 E RIM ESTATES Trail, Payson, AZ 85541
Realty One Group
4 bds | 5 ba | 4,052 sqft | 1.15 acres | Residential for sale
2912 E Chuparosa Circle, Payson, AZ 85541
INTEGRA HOMES AND LAND - A
4 bds | 5 ba | 5,618 sqft | 0.4 acres | Residential for sale
2203 E SCENIC Drive, Payson, AZ 85541
My Home Group Real Estate, LLC - TEMPE
4 bds | 2 ba | 3,104 sqft | 2.11 acres | Residential for sale
1412 E Phoenix Street, Payson, AZ 85541
Real Broker