$425,000
818 N Winchester Drive, Young, AZ 85554
Young · Gila County
What's special
- Mountain(s) & View of Wooded/Trees & Rural views
- Fireplace
- 2-car garage
- Horses allowed
- Basement
Description
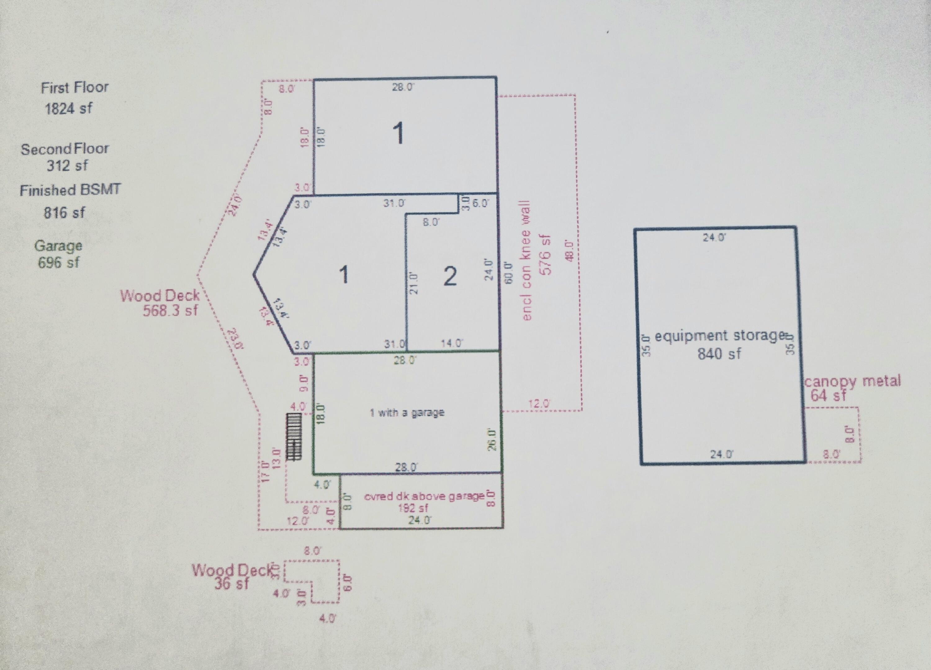
Potential short sale-make offer and will negotiate with mortgage company. Time critical. This chalet style home has incredible views from cathedral windows. The spacious deck out the front wraps around over the garage where two other rooms have door access. The walk out basement has concrete pad where you can enjoy the covered patio area with beautiful views. The great room has a see through stone fireplace. The other view of fireplace is a spacious dining area and kitchen. The dining area opens up to a screened AZ room. Large Master Bedroom has a walk in closet. Enclosed AZ room is a great place to sit and enjoy your coffee. The other side of home is the laundry room and bedrooms. The Jack and Jill bathroom is so convenient. Bedroom opens up to deck with views of forest. Large loft would be a great place for a study, library, or a sitting room. Covered in wood making it a warm peaceful place. Spacious basement with more incredible views. Room under the stairs. A larger room has a sink and wall of shelves could be a craft, canning or etc. Basement opens up to 2 care garage with roll up doors. Septic is in and hooked up. The well is a shared well with the neighbor just west.
Property details
Interior
Bedrooms
- Bedrooms: 3
Bathrooms
- Total Bathrooms: 2
- Full Bathrooms: 0
- 3/4 Bathrooms: 1
- 1/2 Bathrooms: 1
Interior Features
- Breakfast Bar
- Vaulted Ceiling(s)
- Kitchen-Dining Combo
- Flooring: Concrete, Wood
Appliances
- Laundry Features: Dryer, Washer, Utility Room, Gas or Electric Hook Up
Heating and Cooling
- Cooling Features: Electric Refrig., Heat Pump
- Heating Features: Forced Air, Heat Pump
- Fireplace: Yes
- Fireplace Features: Wood Burning Stove, Great Room, Double Sided
Other Interior
- Levels: Multi/Split
- Basement: Walk Out Basement
Exterior
Exterior and Lot Features
- Screened Porch/Deck
- Patio and Porch Features: Porch, Covered
Land Info
- Many Trees
- Hill Top
- Lot Size Acres: 3.00
- Lot Size Square Feet: 130,680
- Lot Size Dimensions: 363.48X312.77X363.48X312,21
Garage and Parking
- Garage Spaces: 2
- Attached Garage: Yes
- Parking Features: Garage Door Opener, Attached
Home Features
- View: Mountain(s), View of Wooded/Trees, Rural
- Horse Property: Yes
Community
Neighborhood
- Subdivision: Young
- MLS Area: Young
Listing
Other Property Info
- Annual Tax Amount: $3,749
- Source Listing Status: Pending
- County: Gila
- Directions: Take Hwy 260 from Payson to Young turn off Baker Ranch Rd west until Tewksbury. Turn right on Tewksbury. Take road on right when get to end of Tewksbury. Winchester. Past turn to right and on left side a gate with sign.
- Property Subtype: Site Built
- Parcel Number: 305-22-013M
- Zoning: GU
- Postal City: Young
- Listing Date: 12/17/2025
- On Market Date: 12/17/2025
- MLS#: 93211
Features
Building and Construction
- Total Square Feet Living: 2,136
- Year Built: 2003
- Property Age: 23
- Architectural Style: Multi-Level, Chalet, Fix Up, Basement, Walk-out Basement
- Construction Materials: Wood Frame, Wood Siding
- Roof: Rolled/Hot Mop
- Levels: Multi/Split
Utilities
- Septic Tank Installed
- Electricity Available
- Coop Well
- Generator
- Propane Tank Leased
- Trash
Contact Us
Contact Us
Ask a question or schedule a showing
Listing updated: May 9, 2026
MLS#: 93211
Listing information is provided by the Central Arizona Association of REALTORS® MLS. IDX information is provided exclusively for consumers' personal, non-commercial use, and may not be used for any purpose other than to identify prospective properties consumers may be interested in purchasing. The data is deemed reliable but is not guaranteed accurate by the MLS.
Under the long-established policy of this association, the broker's compensation for services rendered in respect to any listing is solely a matter of negotiation between the broker and his or her client. The compensation paid by a listing broker to a cooperating broker in respect to any listing is established by the listing broker and is not fixed, controlled, recommended, or maintained by any person other than the listing broker.
Similar homes in Young
Land for sale
$386,00014 acres
46600 N AZ-288, Young, AZ 85554
YOUNG REALTY PARTNERS
House for sale
$465,0003 bds | 3 ba | 1,410 sqft | 2.5 acres
455 N Seeley Road, Young, AZ 85554
YOUNG REALTY PARTNERS
Land for sale
$470,00040 acres
4H Ike Clark Parkway, Young, AZ 85554
YOUNG REALTY PARTNERS