$594,000
606 E Luke Drive, Payson, AZ 85541
Rancho Del Tonto · Gila County
Description
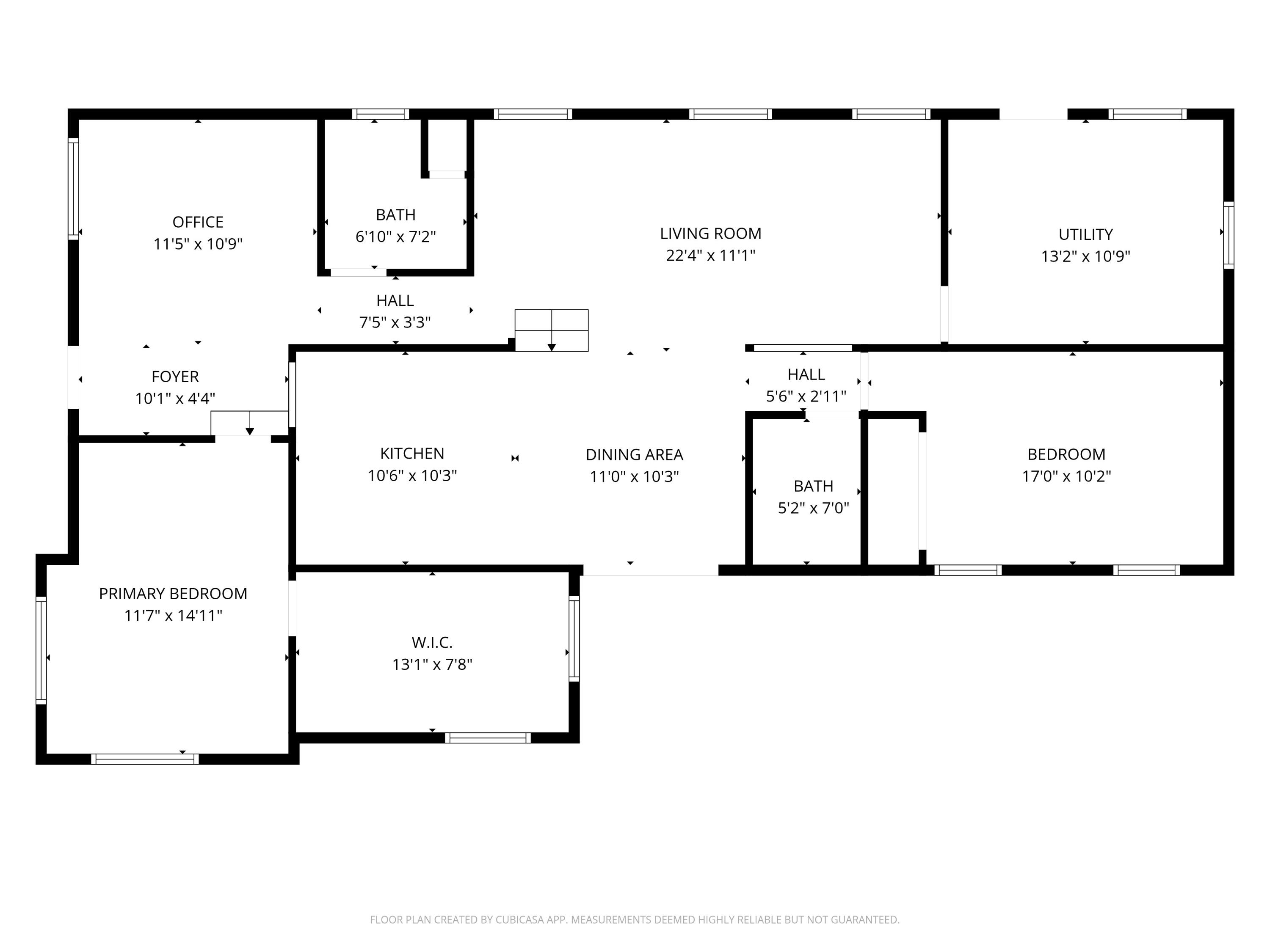
While this home may be classified as a manufactured/single-wide, it is actually built with robust 12-inch block construction and topped with a newer steel roof, making it exceptionally solid and energy efficient. This beautifully updated 2-bedroom, 2-bath home features numerous upgrades throughout. The primary suite includes an impressive 13x8 closet, while both bathrooms and the kitchen have been tastefully updated with new cabinetry, countertops, fixtures, and newer appliances. Gorgeous wood flooring, baseboards, and doors add warmth and character, and the home is available partially furnished for added convenience. Located within town limits yet offering a true out-of-town feel, this rare property spans two oversized lots filled with mature trees, lush landscaping, and abundant greenery--creating a private, park-like setting. The fully fenced and gated property includes a solar-powered gate and backs to an undeveloped area, enhancing the sense of space and seclusion. Both lots feature large RV gates and ample parking. A property-wide drip system paired with a French drain irrigation system keeps the grounds beautifully maintained year-round. Enjoy north-south exposure, an outdoor shower, and a variety of producing fruit trees including apple, plum, apricot, cherry, and peach. Additional highlights include three large sheds, two spacious carports, and included parcels 302-41-064 and 302-41-065 (606 & 608 E Luke Dr). The home is all-electric with gas available. Buyer to verify all facts and figures.
Property details
Interior
Bedrooms
- Bedrooms: 2
Bathrooms
- Total Bathrooms: 2
- Full Bathrooms: 2
Interior Features
- Master Main Floor
- Kitchen-Dining Combo
- Foyer/Entry
- Flooring: Concrete, Laminate, Wood
- Window Features: Double Pane Windows
Appliances
- Laundry Features: Utility Room
Heating and Cooling
- Cooling Features: Electric Refrig.
- Heating Features: Electric
Other Interior
- Levels: Multi/Split
Exterior
Exterior and Lot Features
- Patio
- Storage/Utility Shed
- Drip System
- Patio and Porch Features: Porch
- Fencing: Chain Link, Wood, Security
Land Info
- Landscaped
- Tall Pines on Lot
- Borders Undvlpd Land
- Lot Size Acres: 0.42
- Lot Size Square Feet: 18,295.2
- Lot Size Dimensions: TBD
Garage and Parking
- Carport Spaces: 3
- Attached Garage: No
- Parking Features: Detached, RV Access/Parking, Carport, Oversized
Community
Neighborhood
- Subdivision: Rancho Del Tonto
- MLS Area: Payson Northeast
Listing
Other Property Info
- Source Listing Status: Active
- County: Gila
- Directions: From 87 N go right on Rancho Left on Lindy straight to Luke Dr No Sign Posted
- Property Subtype: Mobile Home
- Parcel Number: 302-41-065
- Zoning: Residential/MF
- Postal City: Payson
- Listing Date: 2/7/2026
- On Market Date: 2/9/2026
- MLS#: 93406
Features
Building and Construction
- Total Square Feet Living: 1,342
- Year Built: 1959
- Property Age: 67
- Architectural Style: Single Level, Ranch, Single Wide, Add On
- Construction Materials: Block, Brick
- Roof: Metal
- Levels: Multi/Split
Utilities
- Water Source: In Payson City Limits
- Sewer Connected
- Cable TV/Satellite
- Internet Hook Up
- Electricity Available
- Town of Payson Water
- Trash
Contact Us
Contact Us
Ask a question or schedule a showing
Listing updated: May 12, 2026
MLS#: 93406
Listing information is provided by the Central Arizona Association of REALTORS® MLS. IDX information is provided exclusively for consumers' personal, non-commercial use, and may not be used for any purpose other than to identify prospective properties consumers may be interested in purchasing. The data is deemed reliable but is not guaranteed accurate by the MLS.
Under the long-established policy of this association, the broker's compensation for services rendered in respect to any listing is solely a matter of negotiation between the broker and his or her client. The compensation paid by a listing broker to a cooperating broker in respect to any listing is established by the listing broker and is not fixed, controlled, recommended, or maintained by any person other than the listing broker.
Similar homes in Payson
House for sale
$594,9003 bds | 2 ba | 1,602 sqft | 0.33 acres
1428 N EASY Street, Payson, AZ 85541
PAYSON HOMES & LAND
Multi-family for sale
$595,0007 bds | 5 ba | 3,650 sqft
205 S Ponderosa Street, Payson, AZ 85541
Avenew Realty Inc
House for sale
$595,0002 bds | 2 ba | 1,056 sqft | 1.64 acres
308 N Nellie Drive, Payson, AZ 85541
Realty ONE Group
House for sale
$599,0003 bds | 2 ba | 1,632 sqft | 0.21 acres
193 E Saddle Mountain Road, Payson, AZ 85541
HomeSmart Pros
House for sale
$589,0004 bds | 3 ba | 1,999 sqft | 0.12 acres
205 S Thunder, Payson, AZ 85541
1st Dream Realty
House for sale
$588,0003 bds | 2 ba | 2,057 sqft | 0.15 acres
2110 N Cold Springs Point, Payson, AZ 85541
HomeSmart Pros