$775,000
5301 Saddle Strap Way, Pinetop, AZ 85935
Description
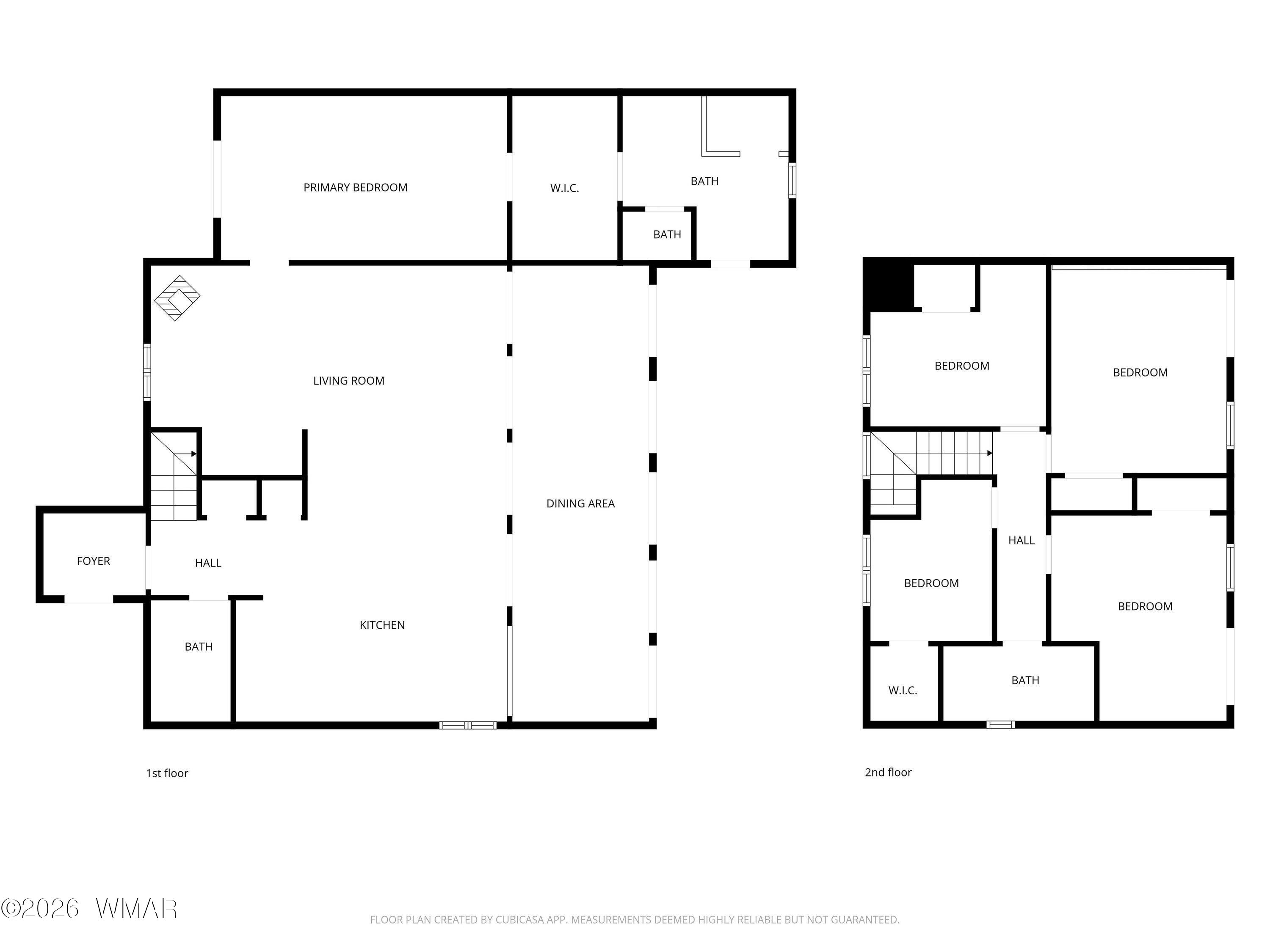
Tucked in the highly sought-after Pinetop Lakes Equestrian community, this one-of-a-kind 5-bedroom, 3-bath, 2,561 sq ft mountain retreat blends innovative design with modern comfort. This unique double-envelope passive solar home features a sun-filled solarium that naturally circulates warm air between dual walls, helping maintain comfortable temperatures year-round while keeping utility costs low. The spacious, open-concept layout is ideal for both everyday living and entertaining, highlighted by a stunning kitchen with granite countertops that flows seamlessly into the main living area, complete with a cozy gas fireplace/stove. The newly added main-level primary suite is a true sanctuary, offering heated floors, a heated towel rack, steam locker, and spa-inspired finishes. Additional upgrades include a tankless water heater and fresh exterior paint. Situated on a generously sized lot surrounded by mature Aspen and Ponderosa pines, the property also features custom front-yard landscape lighting for exceptional curb appeal. A rare opportunity to own a distinctive, energy-efficient home in one of Pinetop's most desirable communities. Living in Pinetop Lakes Equestrian Estates offers a rare blend of mountain serenity, outdoor adventure, and upscale community living. Surrounded by towering Ponderosa pines and cool alpine air, residents enjoy a peaceful escape with access to horseback riding, scenic trails, and abundant wildlife right outside their door. The neighborhood is known for its spacious lots, custom homes, and a strong sense of privacy, while still being just minutes from golf, dining, and year-round recreation. Whether you're exploring the nearby forest, enjoying crisp mornings on the porch, or taking advantage of the exclusive Pinetop Lakes amenities, life here captures the essence of refined mountain living.
Contact Us
Contact Us
Ask a question or schedule a showing
Listing updated: April 21, 2026
MLS#: 260710
Data relating to real estate for sale on this website comes in part from the Internet Data Exchange (IDX) program of the White Mountain Association of REALTORS® MLS. IDX information is provided exclusively for consumers' personal, non-commercial use, and may not be used for any purpose other than to identify prospective properties consumers may be interested in purchasing. The data is deemed reliable but is not guaranteed accurate by the MLS.
© 2026 White Mountain Association of REALTORS® MLS. All rights reserved.
Similar homes in Pinetop
House for sale
$760,0003 bds | 2 ba | 1,812 sqft | 0.24 acres
2583 Greens Peak Lane, Pinetop, AZ 85935
Plush Arizona Living
House for sale
$795,0003 bds | 2 ba | 1,968 sqft | 0.28 acres
4433 Branding Iron Loop, Pinetop, AZ 85935
West USA Realty - Pinetop
House for sale
$795,0005 bds | 4 ba | 1,936 sqft | 0.53 acres
2827 Sunflower Drive, Pinetop, AZ 85935
Russ Lyon Sotheby's International Realty
House for sale
$797,5005 bds | 4 ba | 3,913 sqft | 0.62 acres
233 E Turkey Track Lane, Pinetop, AZ 85935
Realty Executives AZ Territory - Pinetop
House for sale
$740,0004 bds | 3 ba | 2,212 sqft | 0.44 acres
5155 Buck Springs Road, Pinetop, AZ 85935
West USA Realty - Pinetop
House for sale
$729,0004 bds | 4 ba | 2,802 sqft | 0.31 acres
5728 Bermuda Circle, Pinetop, AZ 85935
Homesmart Pros